LIFESTYLE
:シャープな雰囲気に、色を効かせて楽しむインテリア:素敵なおうち訪問 keiさん宅 後編
LIFESTYLE
:
素敵なおうちを訪ね、家づくりにおいてこだわったところやお気に入りのポイントなどをお聞きする連載「素敵なおうち訪問」。
今回訪れたのは、都内の賃貸マンションで家族と愛犬と暮らすkeiさんの住まい。はじめからDIYで自分好みの空間に仕上げることを決めていたという住まいには、賃貸とは思えない工夫と心地よさが随所に詰まっています。
後編では、無機質になりすぎないよう、ファブリックやアートで色を効かせたインテリアの工夫をご紹介します。リビングや寝室にちりばめられた、keiさんらしい色使いのアイデアに注目を。
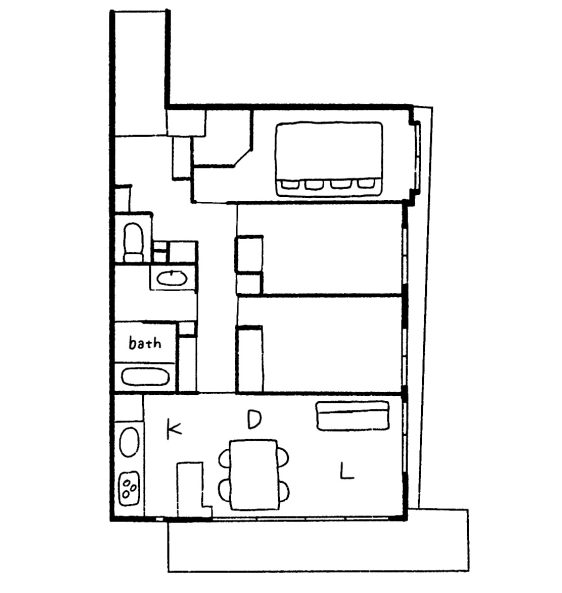
keiさんのおうちDATA


・3LDK(75㎡)
・世帯人数 4人(お子さんは小学5年生と2年生)+わんちゃん
PROFILE
keiさん(看護師)
インテリアを中心に、ファッションやアートなど幅広い分野に関心を持つ。Instagramでは、賃貸DIYをはじめ、暮らしに役立つインテリア情報をリールなどで発信中。
Instagram:@___c.ms
space 1
ダイニング
「基本は無機質な空間が好き」と話すkeiさん。ステンレスのシルバー、グレー、白を基調に構成した住まいに、イエローやブルーを小さな照明やファブリック、アートを通して取り入れ、空間に彩りを添えています。

まずはダイニングまわり。keiさんらしい配色のルールが、空間の随所に感じられます。白のテーブルを中心に、木やワイヤーデザインのチェアを組み合わせ、リズミカルな空間。
照明には、お気に入りのブランド「&tradition」からセレクト。控えめなデザインながら、マスタードが空間に心地よいアクセントを与えています。
「&traditionの照明はふたつ持っていて、気分に応じて設置する場所を変えて楽しんでいます」

flowerpotのマスタード

テーブルの奥にはフィルムミラーを設置し、部屋を広く見せる工夫も
リビングの一角に「アルテック」の90Cテーブルを置き、ダイニングのサブテーブルとして活用。現在は生産されていない、直径60cmの円形テーブルです。
「サブテーブルがあることで、家族それぞれの居場所が生まれ、気持ちにもゆとりが生まれる気がします。リビングで宿題をしたり、食事をとったりと、その時々の過ごし方にあわせて臨機応変に使っています。Stool 60と並べると、親子みたいでお気に入りです」
space 2
リビング

家族みんながくつろぐリビング。ベージュの床や白いソファが広がる空間に、カラフルなファブリックとアートで表情をつくっています。

ソファに置いたHAYのタオルケットもアクセントに
照明には、提灯を思わせるアジア調のフォルムに、モダンなデザインを掛け合わせた「&tradition」の一灯。ふんわりとしたシルエットが、空間にやさしく溶け込みます。

&traditionのFormakami
お気に入りのボックスが大活躍!


Think of ThingsのCARTON 2.0は、耐久性に優れた段ボール素材を使った収納ボックス。軽量ながらしっかりとしたつくりで、重ねて使えるのも特徴です。
「リビングでは家族で遊ぶボードゲームの収納に、寝室では絵本入れとして活躍中。シルバーのかっこいい佇まいと、頼もしい頑丈さがお気に入りです」

また、フォーカルポイントとなる場所に黄色の延長コードを縦に這わせ、空間を引き締めているそう。

カーテンレールから吊るすアイデアが◎
space 3
寝室

満月のような照明はHAYのPAPER SHADE(60サイズ)
家族4人で眠る、広々とした寝室。あえて布団カバーはホワイトリネンのまま、まくらカバーだけをポップなデザインを採用しています。
「まくらカバーは主に、IKEAとHAYで購入しました。空間がかわいくなりすぎないよう、照明でバランスを取るように空間を引き締めています」

また、空間をすっきりさせるためにプロジェクターを活用。
「寝る前は、プロジェクターでドラマや映画を流しながら、ぼーっと過ごしています。最近は、YouTubeの睡眠用動画を流し、クラゲや水中の映像を眺めながら眠るのが定番です」

角から斜めに照射することで、部屋の邪魔にならないように
寝室の一角に
くつろぎスペースを確保

寝室の一角にデスクとチェアをおいて、keiさん専用のくつろぎのスペースを設けました。
「昼間は日当たりがよくて気持ちいい。夜は照明を灯して、落ち着いて過ごせる場所。ここで過ごす時間が大好きです」
ブルーのチェアが、静かな空間にほどよい彩りを添えています。

無機質な雰囲気をベースに、色や質感を少しずつ重ねながら、心地よさを育ててきたkeiさんの住まい。暮らしや気分にあわせて楽しく、心地よく整えていきたいという姿勢が空間全体にやさしく息づいています。

その他の素敵なおうち訪問の記事を読む
photograph:Tsubottle edit & text:Riho Abe illustration(間取り):Kayo Yamaguchi
※画像・文章・イラストの無断転載はご遠慮ください
おすすめ記事 RELATED ARTICLES
Recommend
SNAPRanking
DAILY
/
WEEKLY







































ダイニング横に、
サブテーブルスペースを設置